Zentral gelegenes Mehrfamilienhaus mit 3 Wohneinheiten – Attraktive Kapitalanlage oder perfektes Objekt für Mehrgenerationenwohnen

549.000 €

Kaufpreis: 2.700 €/m²

10

Zimmer

233 m²

Wohnfläche

213 m²

Grundstück

Objektdaten

  • Objekt 1025133
  • Objektanschrift 73054 Eislingen/Fils
  • Immobilientyp Mehrfamilienhaus
  • Gesamtpreis 549.000 €
  • Stellplatz / Garage
  • Verfügbar ab nach Vereinbarung
  • Wohnfläche 233 m²
  • Grundstücksfläche 213 m²
  • Etagenanzahl 3
  • Bauweise Massivbau
  • Baujahr ca. 1914
  • Zustand Gepflegt
  • Käuferprovision

    vom beurkundeten Kaufpreis

Ausstattung

  • Zimmer 10
  • Schlafzimmer 7
  • Badezimmer 3
  • Separates WC 3
  • Einbauküche ja
  • Bodenbelag Linoleum
  • Garage / Stellplätze Garage
  • Aufzug nein
  • Balkon, Terrasse
  • Keller ja

Objektbeschreibung

Das im Jahr 1914 erbaute Mehrfamilienhaus präsentiert sich in einem gepflegten Zustand mit Satteldach und verfügt über insgesamt drei Wohneinheiten. Das Gebäude wurde zuletzt im Jahr 1996 modernisiert und eignet sich perfekt als Mehrgenerationenhaus oder Kapitalanlage. Alle Wohnungen sind über das helle Treppenhaus erreichbar, verfügen über eine Einbauküche und ein Tageslichtbad.

Die Wohnfläche des Hauses beträgt insgesamt 233 m² und umfasst 10 Zimmer, darunter 7 Schlafzimmer und 3 Badezimmer. Die Erdgeschoßwohnung bietet einen direkten Zugang zum Wintergarten und der Terrasse. Im Obergeschoss ist der überdachte Balkon in südlicher Ausrichtung vom Wohnbereich zugänglich. Das ausbaufähige Dachgeschoss mit einer Fläche von 40 m² bietet zusätzlichen Raum für individuelle Gestaltungsmöglichkeiten und ist von der obersten Wohnung zugänglich. Die großzügig geschnittenen Räumlichkeiten bieten ausreichend Platz für Familien oder können als Wohn- und Arbeitsräume genutzt werden.

Ein vielseitiges und komfortables Zuhause erwartet Sie in diesem Mehrfamilienhaus. Die gute Bausubstanz und die regelmäßigen Modernisierungen sorgen für eine langfristige Werterhaltung. Profitieren Sie von der zentralen Lage und den vielfältigen Nutzungsmöglichkeiten dieses charmanten Wohnhauses.

Haben wir Ihr Interesse geweckt? Dann freuen wir uns über Ihre schriftliche Anfrage zur Vereinbarung eines unverbindlichen Besichtigungstermines.

Lage

Das 3-Familienhaus befindet sich in zentrumsnaher Wohnlage von Eislingen/Fils, einer lebendigen Stadt im Landkreis Göppingen. Eislingen liegt im mittleren Filstal zwischen Geislingen und Göppingen, mit der Fils, die die ehemaligen Teilorte Groß- und Klein-Eislingen trennt. Nördlich befinden sich das Rehgebirge mit den Drei-Kaiser-Bergen und südlich die Schwäbische Alb mit der Blauen Mauer. Die abwechslungsreiche Landschaft aus Bergen, Hügeln, Wäldern, Äckern und Streuobst bietet alles für die Naherholung.

Das Filstal ist zudem eine wichtige Industrieregion, gut verbunden durch die B10-Umfahrung, die Nähe zu Stuttgart, die Bahnlinie Stuttgart-Ulm sowie das Radnetz Baden-Württembergs. Die Lage ist ideal für Pendler, da sie eine gute Anbindung an größere Städte wie Göppingen, Stuttgart und Ulm bietet.

Kulturelle Angebote, Bildung, Versorgung und Einkaufsmöglichkeiten sind auf hohem Niveau und lassen keine Wünsche offen.
Die umliegende Natur lädt zu Spaziergängen, Radfahrten und Erkundungen ein, was das Leben in Eislingen besonders attraktiv macht. Insgesamt ist die Stadt ein Ort, an dem man sich wohlfühlen und die Balance zwischen urbanem Leben und Natur genießen kann.

Entfernungen:
Göppingen: ca. 5 km
Geislingen an der Steige: ca. 18 km
Esslingen a.N.: ca. 35 km
Stuttgart: ca. 48 km
Ulm: ca. 49 km

Energieausweis

  • Energieausweistyp Bedarfsausweis
  • Ausstellungsdatum 22.05.2025
  • Gültig bis 22.05.2035
  • Energieeffizienzklasse E
  • Endenergiebedarf 157 kWh/m²a
  • Heizungsart Zentralheizung
  • Wesentlicher Energieträger H-Gas
  • Baujahr Anlagentechnik 1998

Grundrisse & Dokumente

Ausstattung

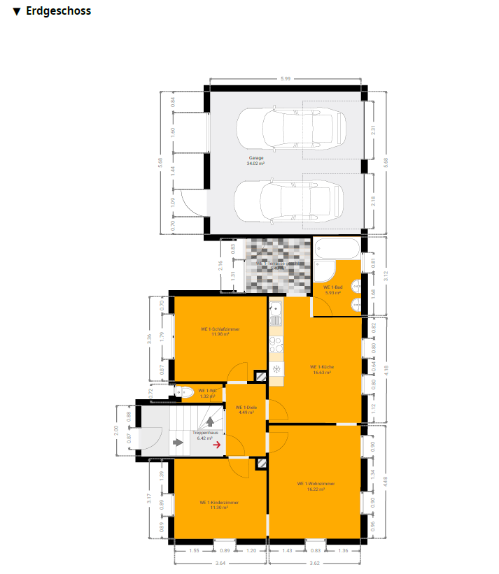
Dieses großzügige 3-Familienhaus mit Außenbereich und Doppelgarage teilt sich auf einer Wohnfläche von insgesamt ca. 233 m² wie folgt auf:

3-Zimmerwohnung im Erdgeschoss (ca. 75 m²):
– Eingangsbereich/Diele
– Küche mit Essbereich inkl. EBK (ca. 19 m²)
– Wohnzimmer (ca. 17 m²)
– Schlafzimmer (ca. 12 m²)
– Kinder- oder Gästezimmer (ca. 11 m²)
– Tageslichtbad mit Badewanne und Waschbecken
– Separates WC
– Loggia/Wintergarten

4-Zimmerwohnung im 1. Obergeschoss (ca. 90 m²):
– Eingangsbereich/Diele
– Küche (ca. 10 m²) mit Durchreiche inkl. EBK
– Wohn-/Essbereich (ca. 29 m²), mit Zugang zum Balkon
– Schlafzimmer (ca. 15 m²)
– Kinder- oder Gästezimmer (ca. 12 m²)
– Kinder- oder Gästezimmer (ca. 11 m²)
– Tageslichtbad mit Badewanne und Doppelwaschbecken
– Separates WC

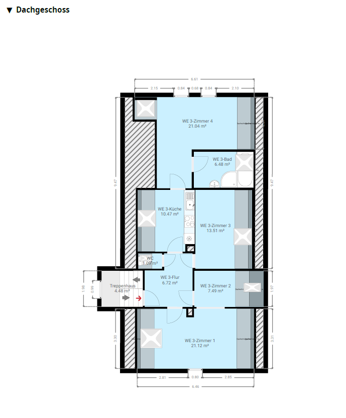
3-Zimmerwohung im Dachgeschoss (ca. 68m²):
– Eingangsbereich mit Garderobe/Diele
– Küche inkl. EBK
– Wohnzimmer
– Schlafzimmer
– Kinder- oder Gästezimmer
– Tageslichtbad mit Badewanne, Dusche und Waschbecken
– Separates WC
– Ausbaufähiger Dachboden, Deckenhöhe ca. 1,78 m

Untergeschoss:
– Hobbyraum (ca. 32 m²)
– Kellerraum
– Waschküche
– Heizungsraum
– Gewölbekeller
– Holzlagerplatz (ca. 10 Raummeter)
– Fahrradraum

Ausstattungsmerkmale und Sanierungsmaßnahmen:
– Fenster: Kunststoff doppeltverglast, weiß
– Böden: Teppich, PVC
– Heizung: Gas
– Teilweise Innenisolierung
– Jede Wohneinheit verfügt über einen neuwertigen Schwedenofen (Baujahr 2023/2024)
– Großzügige, hohe Doppelgarage (1 Stellplatz für Wohnwagen geeignet)

Anbau 1973:
– Wohn-/Essbereich 1. OG mit Balkon
– Garage EG
– Abstell- und Geräteraum UG

Ihre Ansprechpartnerin

Sandra Dobelmann

Setzen Sie sich mit mir in Verbindung – ich freue mich!

Impressionen