RESERVIERT - Modernisierter Altbau 2-3 Familienhaus mit idyllischem Garten in toller Lage

649.000 €

Kaufpreis: 3.489 €/m²

7

Zimmer

186 m²

Wohnfläche

463 m²

Grundstück

Objektdaten

  • Objekt 1026154
  • Objektanschrift 71409 Schwaikheim
  • Immobilientyp Mehrfamilienhaus
  • Gesamtpreis 649.000 €
  • Stellplatz / Garage
  • Verfügbar ab ab sofort
  • Wohnfläche 186 m²
  • Grundstücksfläche 463 m²
  • Etagenanzahl 3
  • Bauweise Massivbau
  • Baujahr ca. 1953
  • Zustand Gepflegt
  • Käuferprovision 3,57 % inkl. ges. MwSt.

    vom beurkundeten Kaufpreis

Ausstattung

  • Zimmer 7
  • Schlafzimmer 4
  • Badezimmer 3
  • Separates WC
  • Einbauküche ja
  • Bodenbelag Parkett
  • Garage / Stellplätze Garage
  • Aufzug nein
  • Balkon, Terrasse 14,6 m²
  • Keller ja

Objektbeschreibung

Das stilvolle 2-3 Familienhaus wurde 1953 in attraktiver Wohnlage massiv erbaut und 1965 durch eine Aufstockung erweitert. In den darauffolgenden Jahren wurde weiter ausgebaut, u.a. ein Südbalkon angebracht und 2001 das Dachgeschoss um eine Dachgaube vergrößert. Verschiedene Sanierungsmaßnahmen in gehobener Ausstattung haben das Gebäude in seinem besonderen Charme erhalten. Die Immobilie ist für Familien, Paare oder Einzelpersonen geeignet, die viele Möglichkeiten nutzen können. Alle Einheiten stehen zum Eigenbedarf oder zur Vermietung zur Verfügung.

Die ansprechende Immobilie besticht durch besondere Wohnakzente, großzügige Räume sowie das helle Treppenhaus in gepflegtem Altbaustil. Die 1977 angebaute Garage und der gut erhaltene Gewölbekeller bieten ausreichend Nutzflächen. Der Heiz- und Technikraum befindet sich im Anbau und beinhaltet auch eine praktische Werkstatt, die vom Garten aus begehbar ist.

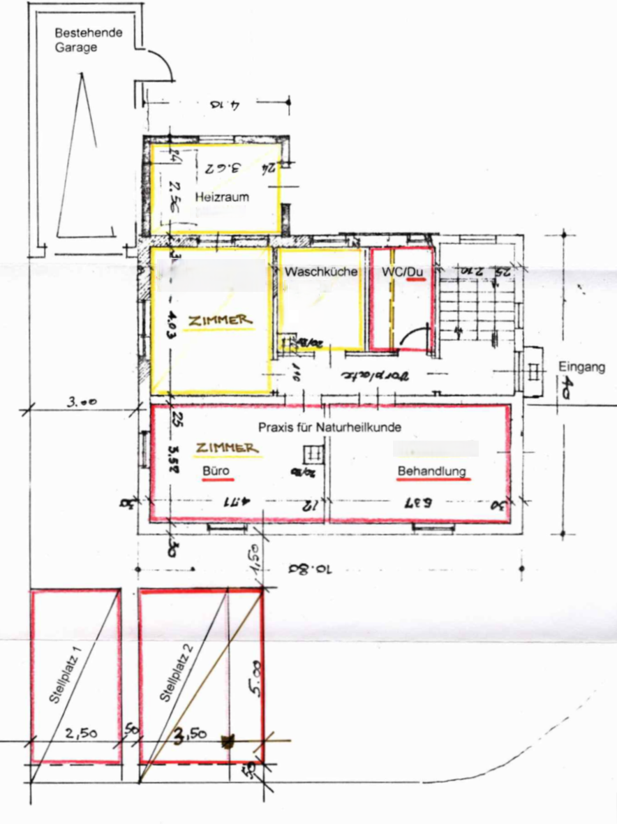
Das Erdgeschoss wird aktuell gewerblich genutzt und kann in eine 3-Zimmerwohnung rückgebaut werden. Wohnfläche ca. 67 m². Drei gemütliche Räume als Wohn- oder Schlafräume, Küche/Hauswirtschaftsraum sowie das großzügige Tageslichtbad mit Dusche und WC.

Das Obergeschoss: 2,5-Zimmerwohnung, Wohnfläche ca. 74 m² – Großzügiger Wohn-Essbereich mit Zugang zur Terrasse (gemauert) Richtung Norden mit Aussicht in den Garten. Die lichtdurchfluteten Räume mit großzügigem und geschmackvollem Wohnambiente und komplett ausgestatteter, neuwertiger Einbauküche, begeistern auf Anhieb. Das Schlafzimmer mit Balkon nach Süden schafft Erholung und frische Morgenluft. Daneben befindet sich das Tageslichtbad mit Dusche und das separate WC. Der Schwedenofen muss ausgetauscht werden.

Das Dachgeschoss: 2,5-Zimmerwohnung Wohnfläche ca. 45 m² – Offener Wohn-Essbereich mit hoher Decke bis unter den Dachspitz. Schlafzimmer mit Holztreppe zur Galerie. Die Gaube wurde 2001 angebaut und für ein großzügiges Badezimmer vorbereitet. Die Anschlüsse sind gelegt und die Ausstattung kann individuell gestaltet werden. Für eine Kochgelegenheit gibt es im Flur eine gemütliche Nische.

Im Außenbereich können Gartenfreunde Ihren grünen Daumen walten lassen, der Teich mit Fischbestand macht die Idylle perfekt. Der Gartenbereich ist eingezäunt und stilvoll angelegt. Eine großzügige Garage und zwei Außenstellplätze runden das Angebot ab. Durch eine Seitentüre kommen Sie von der Garage direkt in den Garten.

Bei einem unverbindlichen Besichtigungstermin können Sie sich persönlich von den Besonderheiten dieser Immobilie überzeugen. Ich freue mich über Ihre Anfrage.

Lage

Die Immobilie befindet sich in zentraler und dennoch ruhiger Wohnlage von Schwaikheim, einer beliebten Gemeinde im Rems-Murr-Kreis. Schwaikheim verbindet auf ideale Weise naturnahes Wohnen mit einer sehr guten Infrastruktur und kurzen Wegen in die umliegenden Städte.

Einkaufsmöglichkeiten des täglichen Bedarfs, Bäckereien, Apotheken sowie weitere Dienstleister sind bequem erreichbar. Ebenso befinden sich Kindergärten, Schulen und medizinische Versorgung in kurzer Distanz und machen die Lage besonders attraktiv für Familien.

Die Verkehrsanbindung ist hervorragend: Über die nahegelegenen Bundesstraßen B 14 und B29 sowie die gute Anbindung an den öffentlichen Nahverkehr sind Waiblingen, Winnenden und Stuttgart schnell erreichbar. Der S-Bahn-Anschluss ermöglicht eine komfortable Verbindung in Richtung Stuttgart und Umgebung und ist insbesondere für Pendler ein großer Vorteil.

Auch der Freizeitwert kommt nicht zu kurz. Die umliegenden Felder, Weinberge und Grünflächen laden zu Spaziergängen, Rad- und Joggingrunden ein. Vereine, Sportangebote und ein reges Gemeindeleben sorgen für eine hohe Lebensqualität.

Entfernungen:
Winnenden: ca. 6 km
Kreisstadt Waiblingen: ca. 8 km
Backnang: ca. 14 km
Ludwigsburg: ca. 14 km
Landeshauptstadt Stuttgart: ca. 22 km

Energieausweis

  • Energieausweistyp Bedarfsausweis
  • Ausstellungsdatum 2.04.2026
  • Gültig bis 2.04.2036
  • Energieeffizienzklasse E
  • Endenergiebedarf 149 kWh/m²a
  • Heizungsart Zentralheizung
  • Wesentlicher Energieträger Gas
  • Baujahr Anlagentechnik 1996

Ausstattung

Über das helle Treppenhaus mit gepflegten Holztreppen, gelangen Sie in alle Stockwerke. Das Dachgeschoss ist durch eine weitere Türe abgetrennt. Die ansprechenden Grundrisse dieser Immobilie bieten auf ca. 186 m² Wohnfläche folgende Aufteilung:

Erdgeschoss (ca. 67 m²):
– Diele/Vorplatz
– Wohnzimmer
– zwei Schlafzimmer
– Küche (derzeit als Hauswirtschaftsraum genutzt)
– Tageslichtbad mit Dusche, Waschbecken und Toilette

Obergeschoss (ca. 74 m²):
– Diele/Vorplatz
– Offener Wohnbereich mit Esszimmer und Zugang zur Terrasse (ca. 11 m²)
– Große Küche inklusive Einbauküche mit E-Geräten
– Schlafzimmer mit Zugang zum Südbalkon (ca. 3 m²)
– Tageslichtbad mit Dusche, Waschbecken
– Separate Toilette mit Waschbecken

Dachgeschoss (ca. 45 m²):
– Diele/Vorplatz
– Offener und heller Wohn- und Essbereich mit hoher Decke (ca. 19 m²)
– Möglichkeit zum Einbau einer Kochnische
– Schlafzimmer mit Galerie
– Das Tageslichtbad in der Dachgaube steht zur Fertigstellung bereit

Untergeschoss:
– Gewölbekeller

– Einzelgarage
– 2 Außenstellplätze
– Zisterne mit Pumpe
– Teich mit Pumpe
– Heizung-/Technikraum mit Werkstatt

Ausstattungsmerkmale:
– 2020 Fenster: Holzfenster weiß, 3-fach Wärmeschutzglas mit verdeckter Sicherung
– Innendämmung der Aussenwände im EG
– Wände: Putz, Raufaser
– Decken: Putz, Holzpaneele
– Böden: Fliesen und Echtholzparkett
– Klappläden
– Holzkonstruktion im Außenbereich zur Holzlagerung
– Drainage auf der Nordost-Seite

Baumaßnahmen:
1965: Dachstockausbau und Neuerstellung Anbau mit Balkon
1969: Bauliche Änderungen am Wohnhaus
1970: Benutzung eines Abstellraumes als Heizöllager
1977: Anbau Garage an Wohnhaus
2000: Estrich im OG, Stromleitungen, Dachbalken, Isolierung mit Glaswolle und Dampfsperre
2001: Anbau Gaube und Nutzungsänderung EG
2015: Austausch Wasserspeicher
2020: Einbau Fenster
2021: Einbau Küche

Ihre Ansprechpartnerin

Sandra Dobelmann

Setzen Sie sich mit mir in Verbindung – ich freue mich!

Impressionen